Why do interior designers choose Archicad?
- Maria Kalashnikova
- Nov 7, 2022
- 3 min read
Updated: Dec 20, 2022
Some people say that BIM technology is not for interior designers! And we 100% disagree with this statement! Modern designers (and we think you are one of them!) should use technology to keep sharp!
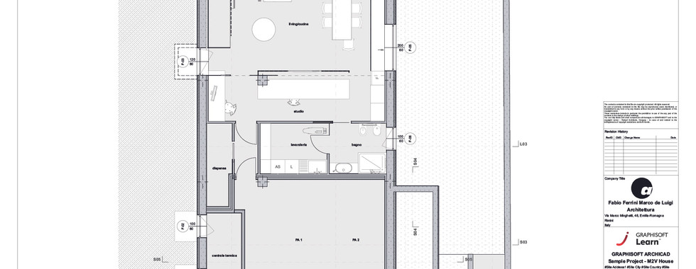
Example of interior documentation designed with Archicad.
We talked with some interior designers and asked why they chose Archicad. Here are some points that show why upgrading your software skills and learning Archicad might be worth it.
Quick plans and sections
You don't need to draw plans with lines and textures! Many standard construction elements – walls, windows, furniture, plumbing and etc. – already exist in a toolset of Archicad and you just need to place them. It makes it easier to work with the plan, and helps you to quickly sketch out several layout options.
Elevation and section views, are built from 3D model, so you don't draw them manually. Just pick the place of elevation and Archicad will create the drawing for you!

The cohesion of 3D models and documentation
As Archicad is a Building Information Modeling solution, all the elements do not simply exist on the plan, but in 3D as well. Actually, 2D representation is based on 3D😉. So when you adjust 3D model, documentation (plans, sections, schedules and etc.) adjust as well. And it works both ways: when you delete something on the floor plan, this element will be deleted everywhere. So you can work on both the plan and the design solution at the same time. This connection eliminates the inconsistency of plans and sections.
Variability of plans
A design project often involves many different plans for one space. With the help of the “Layer Combinations” tool, you can create several plans at once on the same underlay - for example, a plan for floors, ceilings, and lighting. Talking about renovation variability, there's another tool called "Renovation Filter" that will help you to create several versions of one plan: existing, demolition and finish plans.

A diverse library
Archicad has a library of elements with various settings. You can use standard furniture and plumbing, or customize them to fit the project. And if the standard elements are not enough, you can always download some additional ones (we explained here about import) or create your own elements with build-in tools (as Library Part Maker or PARAM-O).

Automatic material counting
You don't need to calculate anything manually anymore! Archicad does it for you: it shows the necessary parameters in schedules according settings. For example, the area or volume of materials from any element of the model. Therefore, the time taken to calculate an interior finishing project report is significantly reduced.
In addition, thanks to the formulas, you can automatically calculate the number of tiles, panels, laminate boards, or the length of the skirting boards.

Graphics settings
Archicad's graphic tools allow you to create any graphic you want: with realistic material textures, sketch, in your color scheme or classic black and white.
Also, creating 3D projections for custom-made furniture helps to create clear images for contractors and builders.

Same-model-based renders
In case of Archicad, your renders will be as close as possible to your documentation, as you can use the same 3D model for rendering and documentation. There are many render options: you can use Archicad build-in CineRender or export (with live-connections) your model to any special rendering software (about these options we explained in details here). So you don't need to spend time on the creation of rendering model – you can use the Archicad model or that.

Project presentation
There's no need to carry around a roll of plans to the meeting with client – everything can be shown on laptop or even on mobile device. Clients can have the model on their smart devices, spin around, and walk through the space virtually in the BIMx app. Or use VR goggles and walk around together to discuss the design. There's even AR option and place the floor plan on the coffee table! This presentation also becomes an indirect marketing tool for you as your clients will love to show off their new design.

A quick assembly of documentation album
A quick assembly of an Archicad album allows you to quickly collect and arrange an album of working drawings. It automatically transfers changes in models into plans, sections and layouts. And even more: you can publish the album in DWG and PDF in one click!
Ready to start designing in BIM? Get a FREE Archicad 30-days license 👉 right now!


































































Comments